欢迎访问 常州市磊康干燥设备有限公司 官方网站
15206115988   15995063027
当前位置:首页 > 产品中心 > 制粒设备
产品中心 干燥设备 制粒设备 混合设备 粉碎设备 筛分设备 热源设备 除尘设备 其他设备
  • 喷雾干燥制粒机

    喷雾干燥制粒机

  • 喷雾干燥制粒机

    喷雾干燥制粒机

  • 喷雾干燥制粒机

    喷雾干燥制粒机

PGL系列喷雾干燥制粒机

产品简介:本机组工作过程为料液通过隔膜泵高压输入,喷出雾状液滴,然后同热空气并流下降,大部分粉粒由塔底排料口收集,废气及其微小粉末经旋风分离器分离,废气由抽风机排出,粉末由设在旋风分离器下端的授粉筒收集,风机出口还可装备二级除尘装置,回收率在96-98%以上。

24小时服务热线
15206115988
产品咨询
产品详情

产品概述

  本机组是一种可以同时完成干燥和造粒的装置。按工艺要求可以调节料液泵的压力、流量、喷孔的大小,得到所需的按一定大小比例的球形颗粒。
  本机组工作过程为料液通过隔膜泵高压输入,喷出雾状液滴,然后同热空气并流下降,大部分粉粒由塔底排料口收集,废气及其微小粉末经旋风分离器分离,废气由抽风机排出,粉末由设在旋风分离器下端的授粉筒收集,风机出口还可装备二级除尘装置,回收率在96-98%以上。
  本机组与物料接触部分的塔体、管道、分离器的材料,均采用SUS304制作。在塔体内部与外壳之间有足够的保湿层,填充材料为超细玻璃棉,塔体设有观察门、视镜、光源及控制仪表,由电器控制操作台控制和显示。

产品应用

制药工业:片剂、冲剂、胶囊剂颗粒;低糖、无糖的中成药颗粒; 食品:可可、咖啡、奶粉、颗粒果汁、调味品等; 其它行业:农药、饲料、化肥、颜料、染料等。

产品特点

1、干燥速度快,料液经雾化后表面积大大增加,在热风气流中,瞬间就可蒸发95%-98%的水份,完成干燥的时间仅需要十几秒到数十秒种,特别适用于热敏性物料的干燥。
2、所有产品为球状颗粒,粒度均匀,流动性好,溶解性好,产品纯度高,质量好。
3、使用范围广,根据物料的特性,可以用热风干燥, 也可以用冷风造粒,对物料的适应性强。
4、操作简单稳定,控制方便,容易实现自动化作业。

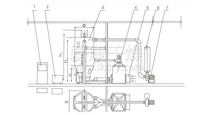
结构示意图

喷雾干燥制粒机结构示意图

1、控制柜 2、输液小车 3、主机 4、换热柜 5、亚高效过滤器 6、消声器 7、引风机

技术参数

项 目 单位/机型 PGL-3B PGL-5B PGL-10B PGL-20B PGL-30B PGL-80B PGL-120B
流浸膏 min kg/h 2 4 5 10 20 60 100
max kg/h 4 6 15 30 40 100 140
沸腾能力 min kg/批 2 6 10 30 60 100 150
max kg/批 6 15 30 80 160 250 450
液体比重 kg/L ≤1.30
原料容器量 L 26 50 220 420 620 980 1600
容器直径 mm 400 550 770 1000 1200 1400 1600
引风机功率 kw 3.0 5.5 7.5 11 15 18.5 30
辅风机功率 kw 0.35 0.75 0.75 1.20 2.20 2.20 4
蒸汽 耗量 kg/h 40 70 99 210 300 366 465
压力 Mpa 0.40-0.60
电热型功率 kw 9 15 21 25.5 51.5 60 75
压缩空气 耗量 m3/min 0.5 0.8 0.8 0.9 1.1 1.3 1.8
压力 Mpa 0.40-0.60
作业温度 °C 室温-160°C自动调节
产品水份 % ≥0.2
物料收得率 % ≥99
设备噪音 dB <77
主机尺寸 Φ mm 400 550 770 1000 1200 1400 1600
H1 mm 940 1050 1070 1220 1570 1590 1690
H2 mm 1900 2360 2680 3150 3630 4120 5050
H3 mm 2050 2590 3020 3600 4180 4770 5800
B mm 740 890 1110 1420 1620 1820 2100

选型例:要求每批次处理流浸膏量 I=120kg(含固量为30%)、种子量II=60kg,可由I、II得出理论成品量 M=mI+mII=120kgx30%+60kg=96kg,工作时间T=120kg/30kg/h=4h,技术参数栏中可查出沸腾量为标准载荷范围,故以每班完成两个批次,选用PGL-30型较为适宜。

在线反馈

相关文章
  • 2023-05-24 14:27:51

    离心喷雾干燥设备大部分的干燥故障都在于对进排风机的风量或风压的调整失误所造成的,一般都是排风量低、风压低,造成的结果便是设备的负压过低,排风温度过高,导致产品的含水量进步。 在日常运作中怎么降低离心喷雾干燥设备能耗的办法较多。依据不同类型、不同适…

  • 2023-05-17 14:29:23

    离心喷雾干燥过程中出现粘壁的原因可能有很多,例如过高的进料含水率、进料温度过高、离心机转速不适宜、喷嘴堵塞等。以下是一些可能的解决方法: 1、降低进料含水率:如果进料的含水率过高,会导致在离心喷雾干燥过程中产生粘壁。可以通过降低进料的含水率来解决这…

  • 2023-05-11 14:30:51

    振动流化床干燥机,简称振动流化床,是一种适用于干燥颗粒和粉状物料的新型流化床干燥设备,具有操作方便、节能环保的优点。振动流化床干燥原理:鼓风机通过一级和中效空气过滤器过滤环境空气,然后通过蒸汽热交换器将其加热至设定温度,然后通过管道进入流化床底部,作为…

  • 2023-04-26 14:32:18

    在带式干燥机开展维修以前,必须将烘干室和管路内的原材料及制成品清除整洁,原材料送到分别的仓库或是本生产车间的原材料存放点,制成品待检验单位鉴定是及格的就应当包裝进库。进行维修前所要做的工作中后,必须对带式干燥机的烘干室机管路开展清理;在清理的全过程中必…

常州磊康干燥
关于我们
公司简介
产品中心
干燥设备 制粒设备 混合设备 粉碎设备 筛分设备 热源设备 除尘设备 其他设备
工程案例
化工行业 食品行业 农副产品 医药制品
扫一扫微信咨询
联系我们
联系人:吴经理
手机:15206115988  15995063027
电话:0519-88060021
地址:江苏省常州市天宁区郑陆工业园区
Copyright 2023 常州市磊康干燥设备有限公司 苏ICP备2023017608号 版权声明
技术支持:江苏东网科技 网络支持:中国化工机械网
Top